Rolde - Nijlanderstraat 3

Status: Onder bod

€ 595.000,- k.k.

Terug naar overzicht

Deel deze woning op:

Overzicht

Wonen in het hart van Rolde! Deze charmante VRIJSTAANDE RIETGEDEKTE WONING met aanbouw (2009) en besloten tuin met houten tuinhuis biedt een unieke combinatie van sfeer, comfort en karakter. Oorspronkelijk gebouwd rond (of zelfs vóór) 1900 en in de loop der jaren meerdere keren verbouwd en vergroot in 2009. Dankzij de complete woonvoorzieningen op de be...

Straat en Huisnummer: Nijlanderstraat 3
Plaats: Rolde
Postcode: 9451 BL
Woningtype: Vrijstaande woning
Status Onder bod
€ 595.000,- k.k.
Download brochure

Rolde - Nijlanderstraat 3

Wonen in het hart van Rolde! Deze charmante VRIJSTAANDE RIETGEDEKTE WONING met aanbouw (2009) en besloten tuin met houten tuinhuis biedt een unieke combinatie van sfeer, comfort en karakter. Oorspronkelijk gebouwd rond (of zelfs vóór) 1900 en in de loop der jaren meerdere keren verbouwd en vergroot in 2009. Dankzij de complete woonvoorzieningen op de begane grond, 5 slaapkamers en 2 badkamers is dit een ideale gezinswoning of levensloopbestendige woning.

Het perceel van 375 m² biedt een besloten tuin aan de achterzijde, gesitueerd op het oosten. Hier bevinden zich een houten tuinhuis met overkapping en een gezellige zitkuil, direct grenzend aan de woonkeuken. Het rieten dak is recent onderhouden (juli 2025).

De woning is gedeeltelijk geïsoleerd: het dak en de gevels zijn voorzien van isolatie, de aanbouw heeft vloerisolatie, en vrijwel de gehele woning beschikt over HR++ beglazing. Verwarming en warm water worden verzorgd door een HR-combiketel. Bovendien is de woning uitgerust met 28 zonnepanelen, wat zorgt voor een gunstig energielabel en lage energielasten.

Begane grond: hal met plavuizenvloer en toilet, slaapkamer met aangrenzende badkamer (voorzien van ligbad met douchescherm en wastafelmeubel), de sfeervolle woonkamer en halfopen keuken beslaan samen 50 m² en zijn afgewerkt met een eiken vloer en balkenplafond, de woonkamer heeft een schouw met rookkanaal, de keuken beschikt over tuindeuren, een fornuis, schouw en inbouwapparatuur (combimagnetron, koelkast en vaatwasser), vanuit de keuken is er toegang tot de bijkeuken met witgoedaansluitingen en buitendeur, de werk-/slaapkamer van 18 m² heeft eveneens een eigen ingang en is ideaal als kantoor of praktijk aan huis (voorheen garage).
Verdieping: overloop met kastenwand, 3 slaapkamers (elk met dakvenster), en een 2e badkamer met dakkapel, ligbad, douchecabine, wastafelmeubel en tweede toilet.
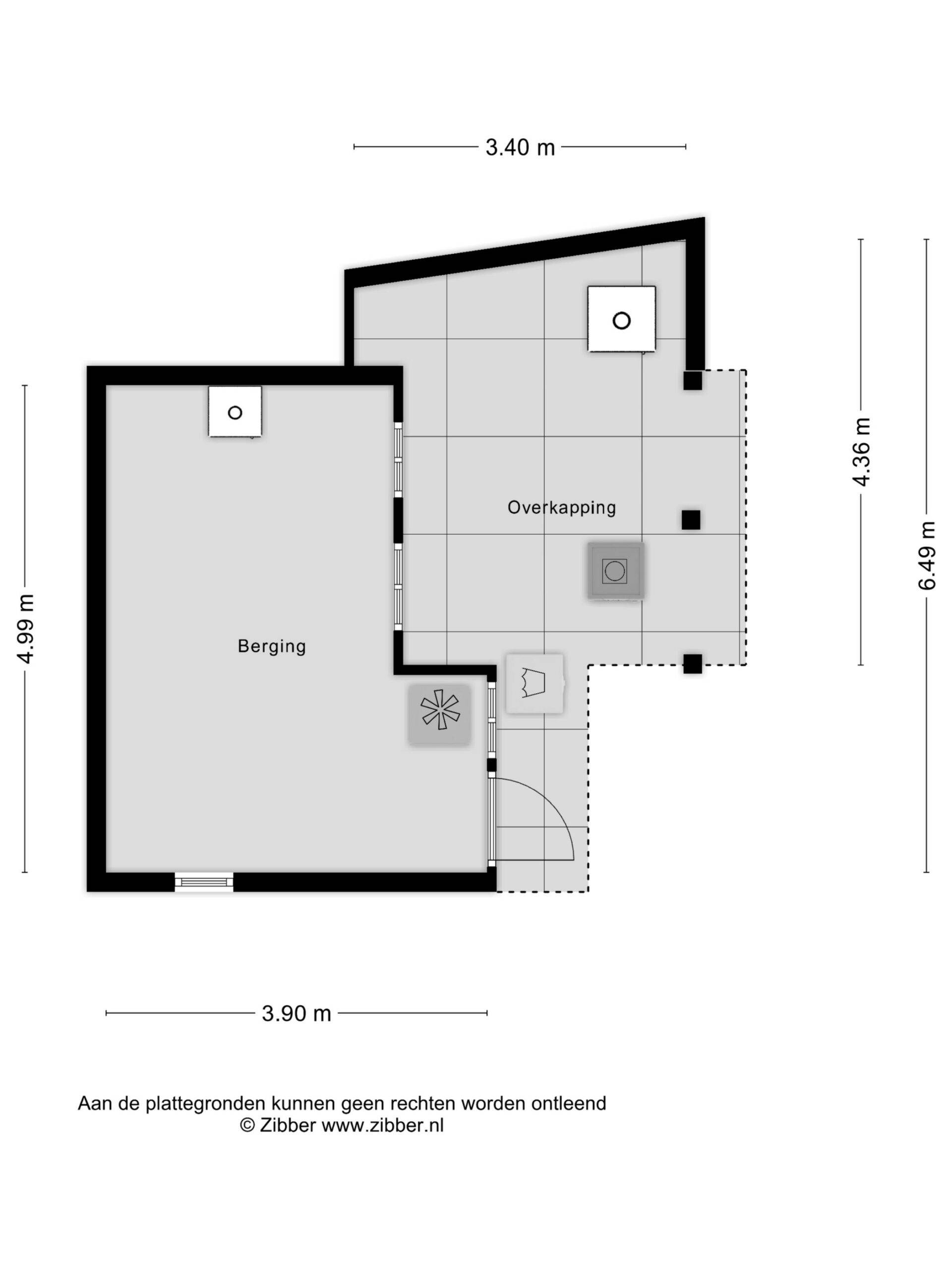
Vliering: via 2 vlizotrappen bereikbaar, bevloerde bergruimte.

Rolde ligt op de Hondsrug, centraal tussen Assen en Gieten, nabij de N33. De woning bevindt zich in een sfeervol en authentiek deel van het dorp, op loopafstand van het dorpscentrum dat uitstekende faciliteiten heeft zoals 2 supermarkten, een bakker, groetenboer en slager, maar ook een drogisterij, fysiotherapeut en een huis- en tandarts. Ook bevinden zich in Rolde zich diverse horeca gelegenheden.

De verkoop start op 26 en 28 november 2025. Tijdens deze dagen bent u welkom voor een bezichtiging op afspraak. Neem contact met ons op om een afspraak te plannen via 0599-234605 of via e-mail.

Straat en Huisnummer: Nijlanderstraat 3
Plaats: Rolde
Postcode: 9451 BL
Woningtype: Vrijstaande woning
Status: Onder bod
Vraagprijs: € 595.000,- k.k.
Aanvaarding: In overleg
Inhoud: 582 m3
Bouwjaar: 1906
Aantal kamers: 6
Aantal slaapkamers: 5
Woonoppervlakte: 157 m2
Perceeloppervlakte: 375 m2
Type tuin: Achtertuin, Voortuin, Zonneterras
Verwarming: CV ketel
Warm water: CV ketel
Type dak: Samengesteld dak
Isolatie: Dakisolatie, Muurisolatie, Vloerisolatie, Dubbelglas

Klik op een plattegrond om deze te vergroten