Stadskanaal - J.F.H. Meijerstraat 5A

Status: Verkocht

€ 165.000,- k.k.

Terug naar overzicht

Deel deze woning op:

Overzicht

Nabij het centrum van Stadskanaal gelegen HELFT VAN DUBBELE WONING met aangebouwde berging, gelegen op een perceel van 188 m². De woning is oorspronkelijk gebouwd in 1930 en beschikt over het volledige woonprogramma op de begane grond. Hoewel de woning onderhoud behoeft, biedt het een mooie kans voor starters of ouderen die gelijkvloers willen wonen.

...
Straat en Huisnummer: J.F.H. Meijerstraat 5A
Plaats: Stadskanaal
Postcode: 9503 BL
Woningtype: Twee onder één kapwoning
Status Verkocht
€ 165.000,- k.k.
Download brochure

Stadskanaal - J.F.H. Meijerstraat 5A

Nabij het centrum van Stadskanaal gelegen HELFT VAN DUBBELE WONING met aangebouwde berging, gelegen op een perceel van 188 m². De woning is oorspronkelijk gebouwd in 1930 en beschikt over het volledige woonprogramma op de begane grond. Hoewel de woning onderhoud behoeft, biedt het een mooie kans voor starters of ouderen die gelijkvloers willen wonen.

De woning is voorzien van centrale verwarming (HRE-combiketel) en kunststof schuifpuien met HR++ beglazing in de slaapkamers. Er is een voortuin, een overkapping, een berging (ca. 11 m²) en een zonnige plaats op het zuiden achter de woning. De ligging in de Parkwijk is rustig, met het centrum van Stadskanaal op korte afstand – ideaal voor wie niet in de drukte van het centrum wil wonen maar toch dichtbij alle voorzieningen.

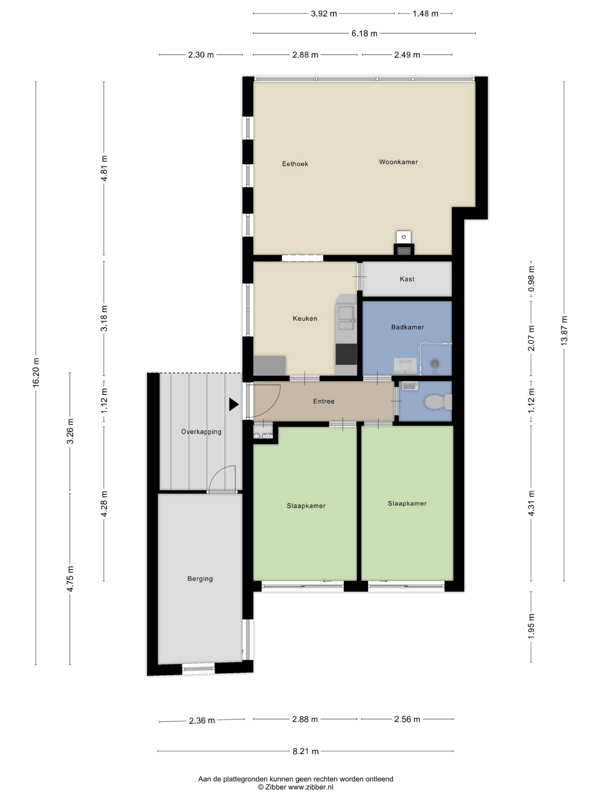
Indeling: hal, toilet, woonkamer met open keuken (samen 38 m²) voorzien van afzuigkap, inductiekookplaat en koel-/vriescombinatie, 2 slaapkamers (11,5 m² met vaste kasten en 13 m²), beide met schuifpui naar de achterplaats, badkamer met douchecabine, wastafelmeubel en CV-opstelling.
Zolder: van buitenaf bereikbare bergruimte.

De verkoop start op 11 en 13 november 2025. Tijdens deze dagen bent u welkom voor een bezichtiging op afspraak. Neem contact met ons op om een afspraak te plannen via 0599-234605 of via e-mail.

Straat en Huisnummer: J.F.H. Meijerstraat 5A
Plaats: Stadskanaal
Postcode: 9503 BL
Woningtype: Twee onder één kapwoning
Status: Verkocht
Vraagprijs: € 165.000,- k.k.
Aanvaarding: In overleg
Inhoud: 322 m3
Bouwjaar: 1930
Aantal kamers: 3
Aantal slaapkamers: 2
Woonoppervlakte: 80 m2
Perceeloppervlakte: 188 m2
Type tuin: Plaats, Zonneterras
Verwarming: CV ketel
Warm water: CV ketel
Type dak: Samengesteld dak

Klik op een plattegrond om deze te vergroten